site plan
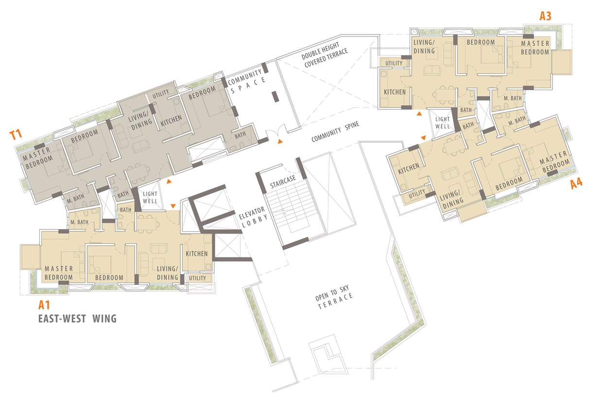
floor plans
unit plans
X